патент "Грубер" |
![]() |
| Каталог |
| Проспект FM 1600 |
Преработка на зърно |
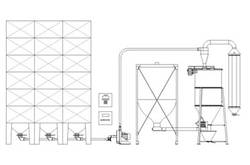
Технологичен модул: Мелеща и смесваща инсталация |
![]() |
Бърз смесител FM от стомана - 500 до 2400 кг ![]() Метод на принудително смесване - разглобяем с модулна конструкция - |
![]() |
Фуния за минерални и други добавки с плътен капак |
![]() |
Въртящ се шибър гарантира цялостно изпразване |
![]() |
| Електрически изход на смесителя - патент "Грубер" |
| Фуражна кухня Технологичен модул: Мелеща и смесваща инсталация – автоматична теглилка с дозиращ компютър Мелещите компоненти на инсталацията се задействат автоматично по програмата зададена на управляващия компютър. Прецизна смесителна система чрез поединично теглене на компонентите на смеската. |
![]() |
| За клиенти | | Вие питате - АгроВиста отговаря ! ... |






